SPX APV TR9 TITAINIUM PLATE HEAT EXCHANGER IDENTICALLY REPLACEMENT PROJECT
DETAIL
SPX APV TR9 TITAINIUM PLATE HEAT EXCHANGER IDENTICALLY REPLACEMENT PROJECT
After years operating, the plate heat exchanger need service by repalcement transfer plates or gaskets. In some case, the whole unit of plate heat exchanger need to replac or substitute.
Considering more efficient way to find a replacement, the user would like to have a exactly identical plate heat exchanger, exactly same size for plate heat exchanger, same corrugations in plates, same status for connections, just remove old plate heat exchanger and install a new one without any extra foundation or pipeline works.
Here we would like to introduce one case, we replace SPX-APV TR9 Titanium Plate Heat Exchanger by Shineheat Plate Heat Exchanger in 100% identical basis.
Original Application for APV TR9 Plate Heat Exchanger
Plate Material: 0.6mm Gr.1 Titanium (TR9GN)
Gasket Material: EPDM (TR9GN)

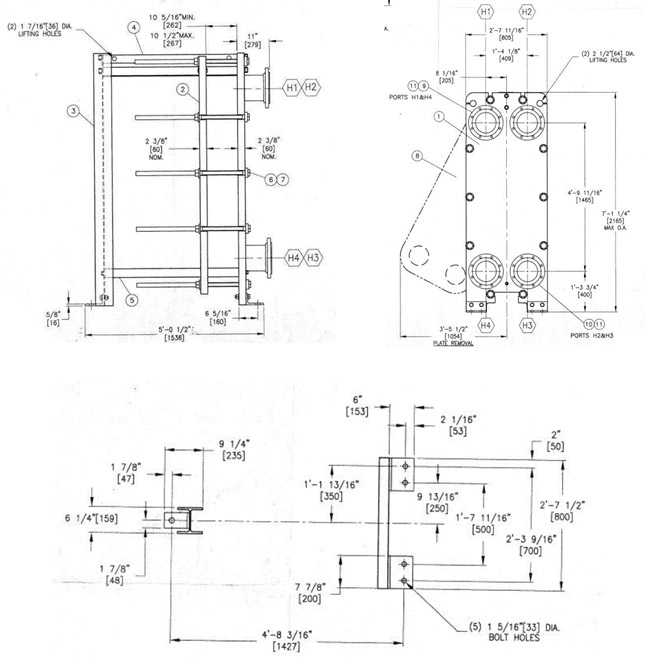
Original Plate Heat Exchanger Size
In view of space limitation at installation location, the customer only allow “5 mm” size deviations on “In-build” Plate Heat Exchanger as to original drawing



After years operating, the plate heat exchanger need service by repalcement transfer plates or gaskets. In some case, the whole unit of plate heat exchanger need to replac or substitute.
Considering more efficient way to find a replacement, the user would like to have a exactly identical plate heat exchanger, exactly same size for plate heat exchanger, same corrugations in plates, same status for connections, just remove old plate heat exchanger and install a new one without any extra foundation or pipeline works.
Here we would like to introduce one case, we replace SPX-APV TR9 Titanium Plate Heat Exchanger by Shineheat Plate Heat Exchanger in 100% identical basis.
Original Application for APV TR9 Plate Heat Exchanger
| Operating Conditions | |||||
| Liquid | Flow Rate | Temp. F | Pressure (PSIG) | Connection Size | Class |
| Sodium Hydroxide | 305,000 lb/hr | 111.8-95 | 7.3 | 8” | 150# ANSI B 16.5 |
| Cooling Water | 420,204 lb/hr | 90-101 | 14.6 | 8” | 150# ANSI B 16.5 |
Plate Material: 0.6mm Gr.1 Titanium (TR9GN)
Gasket Material: EPDM (TR9GN)

Original Plate Heat Exchanger Size
In view of space limitation at installation location, the customer only allow “5 mm” size deviations on “In-build” Plate Heat Exchanger as to original drawing


All the sizes of Construction plate heat exchanger is within 5mm deviation range after production finished. At site, new plate heat exchanger installed and operated very successfully. The delivery time is Aug 2017, up to now it is running on good condition and performance.


